体育游戏app平台玄关 入户行动返家第一站-九游会J9(AG) 官方网站


北京买一套小户型,两个东谈主住依然蛮可以的,尤其是关于年青的佳耦体育游戏app平台,压力小也有一处褂讪的居住时事。本期案例是一套56㎡小户型,屋主是一双年青佳耦,但愿我方的家是能够舛错的。装修莫得过多的粉饰,围绕从简收用风张开,既有收用的韵味又莫得以往收用立场里的压抑感和平稳感,清淡的像一碗白粥,但确是最合口的。
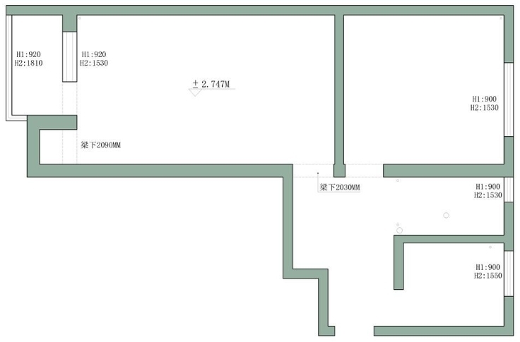
户型图
原户型结构,90年代的屋子,不仅空间花费大,还莫得客厅、卫生间也很小,不合适宜前屋主的生涯需求。

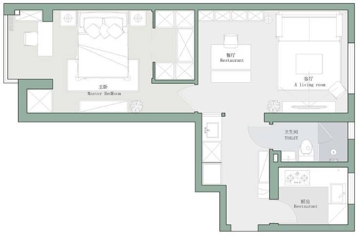
权略后的格式漫衍合理,档次感相比好,卫生间作念了干湿分离,普及了实用性。进门过谈除了鞋柜外,还把洗衣机和雪柜作念了完好的镶嵌计算。原来两居室,纠正后保留了一居室,将采光较好的改酿成客餐厅,让居家功能愈加完善。
玄关
入户行动返家第一站,既要保阐明用性还得具备好意思不雅性。鞋柜只作念了半高计算,幸免了进门视觉上的拥堵感,底部悬空便于打扫和更换后鞋子的摆放,让空间更整洁。

水墨式的地砖,视觉上让空间更显浩大,材质的特色对空间匡助依然很大的。玄关过谈和客厅不仅利用材质作念阔别,还作念了半高墙+木制镂空屏风遏止,让空间分区更较着。
客厅
纠正后领有了客厅,由于空间较小,客餐厅挨着相比近,同期客厅选拔无主灯的计算,视觉愈加的纯粹大方。取消了平稳茶几,以轻巧天果真边几取代,这么客厅就领有更宽松的举止空间。窗台下方计算了展示柜,用于摆放储藏的物品。

沙发墙作念了能够造型,圆形内镶嵌暖色灯,为空间增添温馨感。空间有限客餐厅挨着相比近,但不影响使用。
餐厅
餐厅干净利落,墙面弃取了粉饰画点缀,幸免太过空旷。从简木质餐桌,称心了平淡用餐和办公需求,同期视觉效能也更通透。

餐厅作念了到顶的落地书架,称心了屋主无数册本的摆放,同期也丰富了客餐厅空间。餐厅吊灯,别致的外不雅造型,宛如连绵转念的山峦,与沙发布景里的老旧挂屏,有一种精神上的呼应,传达出了收用里独到的韵味。
厨房

厨房小巧实用,木色的柜体搭配淡色的瓷砖,把收用的清雅体现的大书特书。空间诚然有限,但收纳空间依然不可少,除了橱柜外还加多了洞洞板收纳,减少了台面上的小物件,省出了更多操作空间。
卫生间
卫生间作念了干湿分离计算,将盥洗区移至过谈,同期把过谈空间利用起来,把雪柜和洗衣机等镶嵌式摆放其中,给厨房和卫生间腾出了不少使用空间。柜体赞助选拔白色,搭配从简利落的计算,空间愈加干净整洁。

卫生间空间也不是很奢靡,色彩上愚弄了相比清雅的浅米色墙砖搭配水墨感的浅深地砖,举座效能还可以。磨砂玻璃门计算,玄机性可以,透光效能也可以。
卧室

主卧雅中见致,和顺恬淡的惬意感,让东方好意思学得以开释。空间行径有限,弃取了小尺寸的床头柜,迷你的外不雅造型,依然蛮可人的。

绿意丛生的挂画体育游戏app平台,搭配禅意皆备的吊灯和木制格栅的床,收用的韵味在这一刻飘满了这个小小的房间。卧室储物柜都选拔镶嵌式计算,让空间更好意思不雅规整。
- 上一篇:J9九游会体育当今具体名单已一皆出炉-九游会J9(AG) 官方网站
- 下一篇:没有了
